A brand new buying middle dubbed “Tower Plaza Market” has been proposed to be constructed on a vacant piece of land close to the Denver Worldwide Airport.
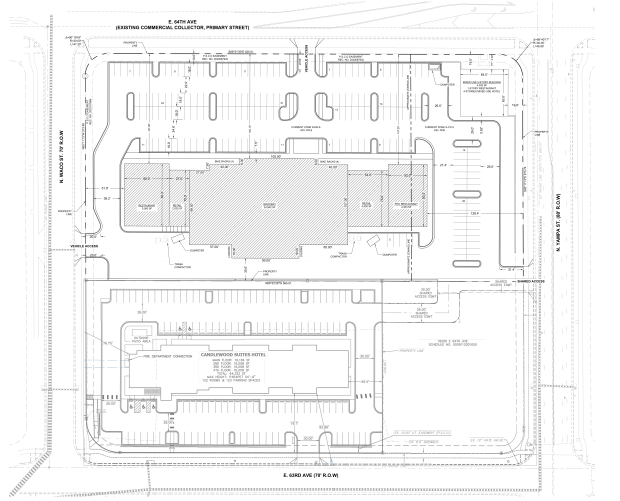
The proposed improvement at East sixty fourth Avenue and North Yampa Road will encompass a 40,000-square-foot mixed-use constructing anchored by a grocery retailer, together with extra retail areas and eating choices resembling a Pho restaurant.
Utilizing a Yahoo e mail account, idea plans had been submitted to the town this month by Kelly Cong Chuong, who seems to be related to Tower Plaza LLC, the listed proprietor of the parcel of land. Chuong couldn’t be reached for remark.
A separate five-story mixed-use constructing may also be developed on the nook of the property.
Denver property information present that the vacant land was bought by Tower Plaza for $3.4 million in September of final yr from L.C. Fulenwider Inc.
The venture is throughout the Peña Station NEXT improvement space, a 220-acre mixed-use improvement. Fulenwider, DIA, Panasonic and KDC have been companions within the creation of Peña Station NEXT.
Moreover, KJ Resort Properties LLC, a Missouri-based improvement firm, plans to construct a brand new four-story Candlewood Suites Hotel simply south of the vacant lot.
The lodge will cowl over 64,000 sq. ft and can characteristic 122 rooms, 123 parking areas and an out of doors patio space.
Get more business news by signing up for our On The Block newsletter.
Initially Revealed:
